ログインされると在庫状況及び販売価格がご確認できます。

アルミ破風化粧板 ハフパネ 本体 H75×3000 ブラック

商品番号
639655
商品型番
参考価格 (税込)
6,600 円
税率
10%

※が商品番号に付いているものは軽減税率対象商品です。

[色]ブラック
[サイズ]3000mm
[材質]アルミ
[仕上げ]電解着色

購入に関する注意事項

【個人宅配送不可】こちらの商品は個人宅へお届けできません。ご注文が個人宅あての場合はキャンセルとなりますのでご了承ください。

特長

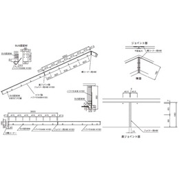
・切妻屋根の妻側に山形に設けられる破風。破風板は、建築物への雨の吹き込みを防ぐ重要な役割を担っています。
・一直線に伸びたハフパネが、屋根をより魅力的でシャープな意匠にします。
・電解着色を採用し色褪せしにくく、いつまでも美しい外観を保てます。
・アルミ押出形材のため、重量が軽く、取付方法も簡単なため、施工費が軽減できます。

ご注意

・鉄造及び木造用です。
・納期:お問合せください。

Order

注文単位:
  枚