ログインされると在庫状況及び販売価格がご確認できます。

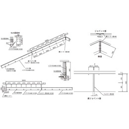
アルミ破風化粧板 ハフパネ ジョイナー用H材 H250 2段用 ブラック

商品番号
639670
商品型番
参考価格 (税込)
418 円
税率
10%

※が商品番号に付いているものは軽減税率対象商品です。

[色]ブラック
[サイズ]H250mm
[材質]アルミ
[仕上げ]電解着色

ご注意

・鉄造及び木造用です。
・納期:お問合せください。

Order

注文単位:
  本