ログインされると在庫状況及び販売価格がご確認できます。

アルミ床下昇降ステップ UDS-160EN

商品番号
431095
商品型番
参考価格 (税込)
96,140 円
税率
10%

※が商品番号に付いているものは軽減税率対象商品です。

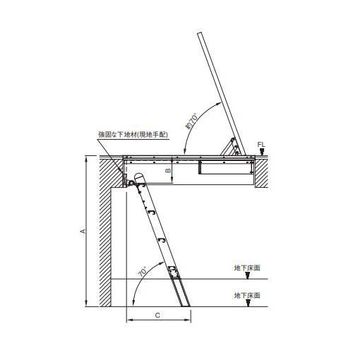
[呼称] UDS-160EN
[サイズ] 床面~地下床面高さ(A)1613~1863mm、床面~受けパイプ取付高さ(B)床面より-248.5mm、設置スペース~壁(C)666~757mm
[色] ホワイト
[重量] 6.5kg
[材質] アルミ
[立掛け角度] 70°
[踏板数] 6
[許容荷重] 120kgf

特長

・長さ調整ができる調整脚(白色)は木製のため現場で切断可能です。
・ハシゴ受け金具のキズ防止のため引っ掛け金具にはビニールホースを通しています。また、ハシゴ受け金具に対して横ズレが起きにくいため安全です。
・組合せ例のNFH-80GAの場合は、ステップの立て掛け角度と天板開閉角度(約70°)がほぼ同じため平行に昇降できます。

ご注意

・一般家庭の屋内専用です。屋外、屋側には設置しないでください。
・ハシゴは床下だけでなく、部屋でもご利用いただけます。
・調整脚は木製のため地下床面に水気がある場合は設置しないでください。
・店舗など使用頻度の激しい場所ではご使用いただけません。
・木製調整脚(白色)の切断は、コルク面が地下床面と接地するようにし、取付けは必ず先き穴をあけビス止めしてください。
・床下開口ハッチ本体への固定は強度不足を起こし事故や故障の原因となります。
・ハシゴ受けパイプ1セット商品に同梱、手摺は別途です。
・特注サイズも製作可能です。
・納期:受注生産となります。
・画像は代表画像になります。

Order

注文単位:
  台