ログインされると在庫状況及び販売価格がご確認できます。

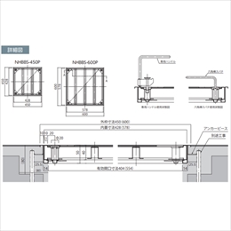
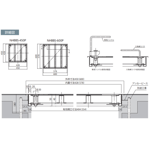
床下点検口ニューハッチ NHBBS-450P

商品番号
433755
商品型番
参考価格 (税込)
103,400 円
税率
10%

※が商品番号に付いているものは軽減税率対象商品です。

[サイズ]W1:450×W2:428×W3:404×H:50mm
[本体重量]5.0kg
[材質]アルミ
[仕上]アルマイトクリア
[耐荷重]Pタイル仕様(P):224kgf

購入に関する注意事項

・仕様等は予告なく変更することがありますので予めご了承ください。
・施工費は担当営業所までお問合せください。

ご注意

・常時水に浸かっている場所や、積雪する場所でのご使用は避けて下さい。
・安全荷重および防水性能は社内試験値であり、保証値ではありません。

特長

・防水・防臭タイプ
・オールステンレス製で屋外でも使用可能
・Pタイル仕様・磁器タイル仕様あり

Order

注文単位:
  台