ログインされると在庫状況及び販売価格がご確認できます。

タスカール SPC-III 109 梯子本体

商品番号
811074
商品型番
参考価格 (税込)
99,000 円
税率
10%

※が商品番号に付いているものは軽減税率対象商品です。

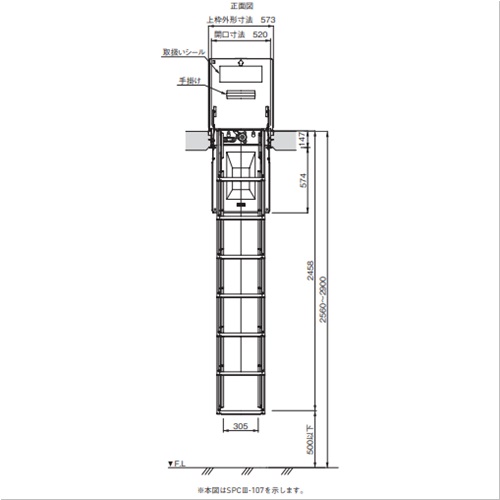
開口寸法は520×600mm(有効開口寸法:φ500mm)の省スペースタイプです。
ケース厚が薄いためスラブが薄い建物にも最適です。
高剛性で使用時の振れが少ない「パンタ式はしご」で安全な避難が行えます。
自動でロックするオートチャイルドロックを標準装備しています。
強風でも蓋が開かない強風対策ラッチ(オプション)は、高層建築に最適です。
はしごは国家検定合格品です。

[サイズ]開口寸法:600mm×520mm、外径寸法653mm×573mm、H168mm
[本体重量]32.3kg
[材質]上蓋:SUS304(t=1.5) 枠体(ケース):SUS304(t=1.2) 下蓋:SUS304(t=1.2)
[仕上]上蓋:エンボス2B

[適用階高]3240〜3580
[開口寸法]600×520
[段数]9段

購入に関する注意事項

【要別途送料】別途送料が必要な商品です。詳細は営業へお問合せください。

備考

代表画像を表示しています。

ご注意

はしごはスチール製メッキ処理品です。
こちらの商品ははしごのみです。
ご注文の際は、はしごのみとケース(蓋・枠)のみの商品番号を必ずご指示ください。
運搬諸経費は別途お問い合わせください。

Order

注文単位:
  台