ログインされると在庫状況及び販売価格がご確認できます。

ガスチャンバー 扉外設置 1型 目板付

商品番号
451114
商品型番
参考価格 (税込)
72,600 円
税率
10%

※が商品番号に付いているものは軽減税率対象商品です。

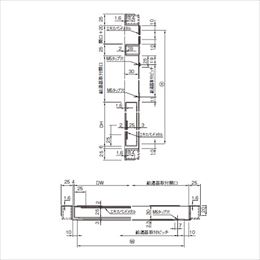
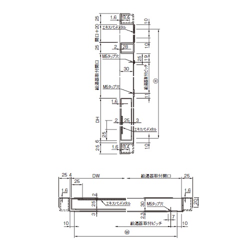
[サイズ]H1900mm、W600mmまで
[重量]20kg
[材質]溶融亜鉛メッキ鋼板
[仕上げ]サッシプライマー
[吊り元]右、左

購入に関する注意事項

・納期:受注生産となります。
・打合せ、発注のための必要事項は下記の通りです。
 ・現場名
 ・給湯器のメーカー名、機種名
 ・吊元、数量 右吊元____枚、左吊元____枚
 ・金物の指示がない場合は、下記制定品になります。
   3インチ面付丁番
   451-251 ワンタッチ平面ハンドルMKS-05 鍵無

ご注意

・W寸法は、給湯器のメーカー機種により異なります。

Order

注文単位:
  枚