JavaScriptを有効にしてご利用下さい
ログインされると在庫状況及び販売価格がご確認できます。
※が商品番号に付いているものは軽減税率対象商品です。
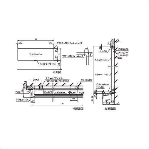
・板面素材は、アルミホーローで、板面には、グリーン、グレーの2色(チョークボード)とホワイトボード(マーカー専用)が用意されており、教室の内装色・用途に合わせお選びいただけます。 ・特にコーナー部等、細部にわたってすべて安全設計です。 ・OA教室やパソコン教室・調理室にはマーカーボードが最適です。 ・平面黒板はワイド幅最大7200mmまで対応。(別製については別途ご連絡承ります。) ・黒板、白板にマグネットが脱着可能です。 ・グリーン購入法適合商品です。 [色]グリーン・グレー [サイズ]H900mm、W2700mm [材質]アルミホーロー [仕上げ]チョークボード [ご注意] ・チョークボードは色をご指示ください。 ・運搬諸経費は別途お問い合わせください。 ・納期:受注生産となります。
本サービスにおける利便性の向上、利用分析のためにcookieを利用しています。詳しくは「プライバシーポリシー」をご確認ください。