ログインされると在庫状況及び販売価格がご確認できます。

クーラーインサート用 全ネジボルト M10x60L

商品番号
246146
商品型番
参考価格 (税込)
220 円
税率
10%

※が商品番号に付いているものは軽減税率対象商品です。

[サイズ]60x10x10mm
[本体重量]30g
[材質]SUS304

ご注意

・機構(公団)住宅AE-505、公共住宅E-406該当品です。
・都営住宅B-11-1該当品は、246-119です。
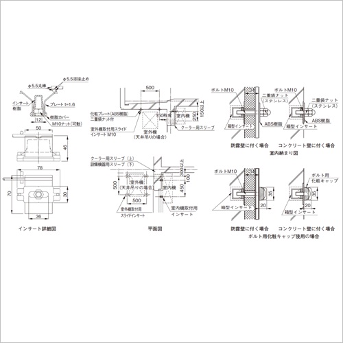
・スラブ厚にご注意ください。
・必要に応じて吹付保護キャップをご使用ください。

ルームクーラーインサート標準セット明細

※内外1組では、外部用セット+内部用セットとなります。
<インサート4連外部用標準セット>
インサート4連外部用 1本
全ネジボルト 4本
通しナット 4個
袋ナット 4個
角型化粧板(または丸型化粧板) 4枚

<インサート6連外部用標準セット>
インサート6連外部用 1本
全ネジボルト 6本
通しナット 6個
袋ナット 6個
角型化粧板(または丸型化粧板) 6枚

<インサート2連内部用標準セット>
インサート2連内部用 1本
全ネジボルト 2本
通しナット 2個
袋ナット 2個
角型化粧板(または丸型化粧板) 2枚

<インサート2連内部用セット(化粧キャップ使用の場合)>
インサート2連内部用 1本
全ネジボルト 2本
化粧キャップ 2個

Order

注文単位:
  本