ログインされると在庫状況及び販売価格がご確認できます。

スパイラルワイヤーセット 1000

商品番号
691789
商品型番
参考価格 (税込)
3,960 円
税率
10%

※が商品番号に付いているものは軽減税率対象商品です。

[材質]SUS304 (7×7)
[仕上げ]12ナイロン樹脂被覆
[サイズ]適応寸法 L=1000mm以下 セット
[備考]呼ビ径φ6mm(芯線φ2.4mm)両端バネ付(片側クリップ付)

購入に関する注意事項

・取付施工は専門業者へご相談ください。
・植栽及び潅水計画は、別途専門業者へご相談ください。
・納期及び梱包送料は、都度お問合せください。

特長

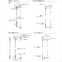
・少ない部材の構成なので低コストで施工することができます。
・コンクリート壁、ALC壁への施工が可能です。また、ワイヤーは現場に合わせてカットできるので設置が容易です。
・壁面からワイヤー持出し距離は、約80〜90mm。壁面と植栽との間に充分な距離を確保できるので壁面を汚したり傷めたりしません。また外断熱効果を高めます。

ご注意

・自由設計となります。現場寸法に応じた最適なプランをご提案いたします。お問合せください。
・下地M10アンカーボルトは建築工事です。
・Lアングルは基本建築工事です。
・ターンバックルは「アルティマターンバックル(232-265、232-266、232-267)」をご参照ください。

Order

注文単位:
  組